venta

Departamento 2 dormitorios

Next
Prev
Anterior
Siguiente
Estado de Construcción
Ubicación

Moreno 1981 - Frente al club GER, Rosario, Santa Fe

Precio

Consultar

Dormitorios2 Dormitorios
Superficie

65 m² totales

antiguedad

Antigüedad: A construccion

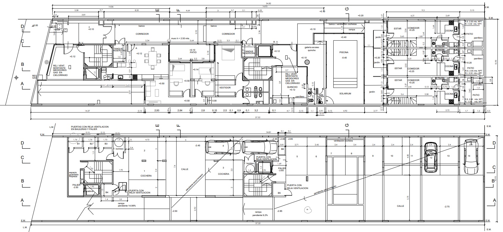
QUINCHO Y PILETA
FRENTE AL CLUB GER

Compartir por: WhatsApp Email

SOBRE ESTA PROPIEDAD

Edificio en construcción con entrega prevista para Mayo de 2025.

Frente al club GER.

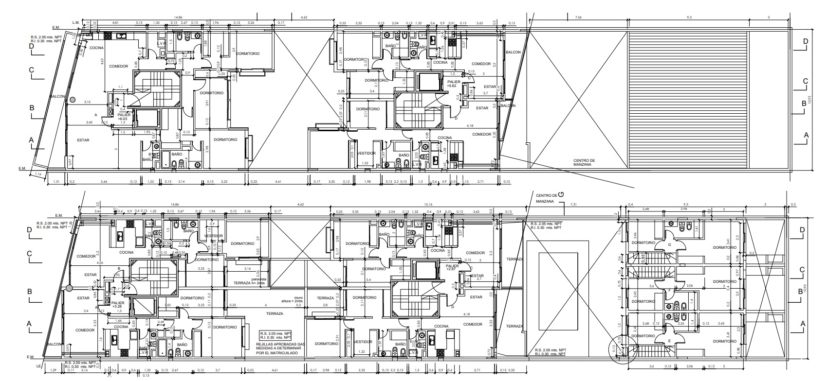
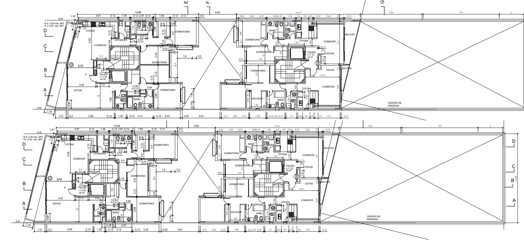
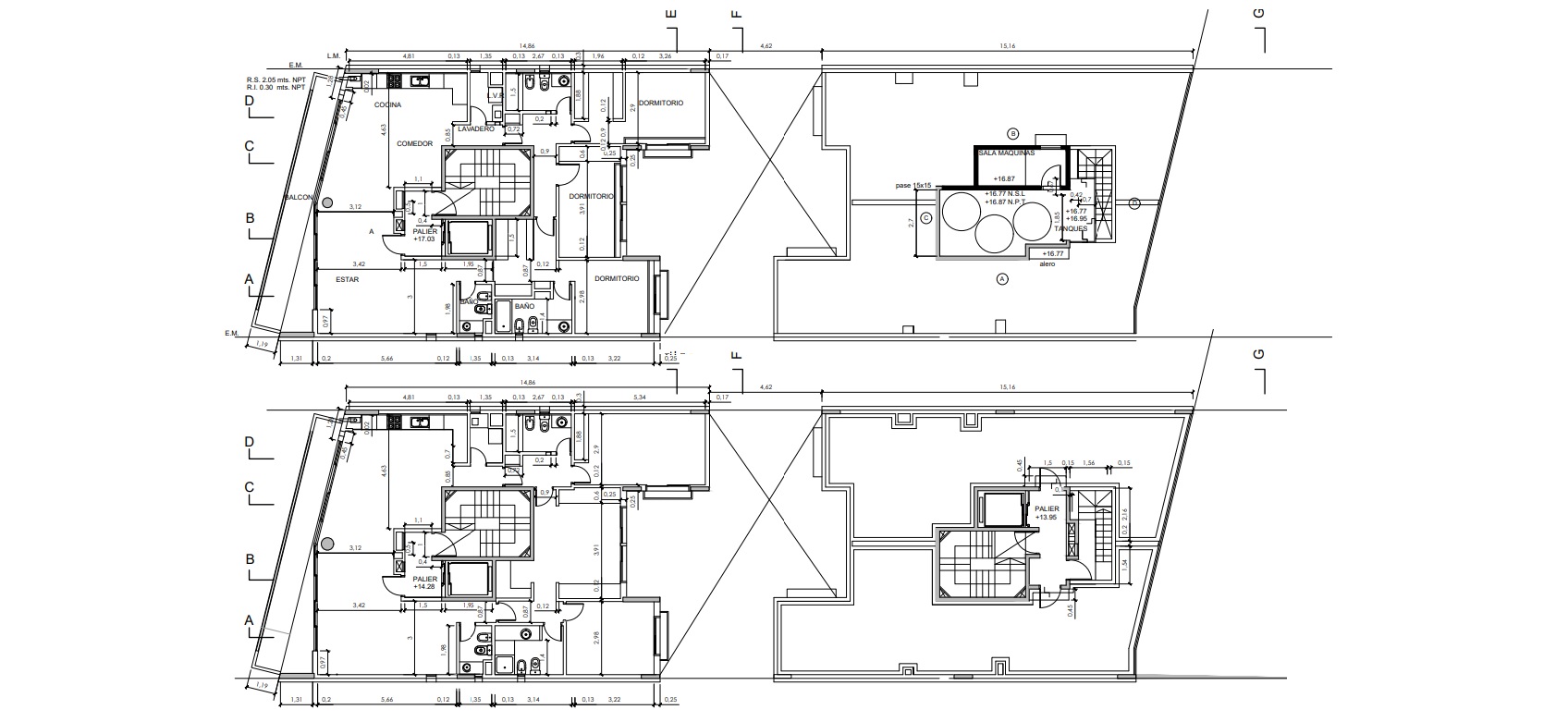
Proyecto conformado en 3 bloques:
1er. bloque: 6 pisos. El piso 1 compuesto por un semipiso de 2 dormitorios. Del piso 2 a 6, pisos exclusivos de 3 dormitorios. Todas estas unidades al frente mirando al club. Este bloque ya se encuentra terminado.
2do. bloque (interno): 4 pisos con semipisos de 2 dormitorios. Si bien se encuentran en el bloque intermedio, la cocina comedor está orientada al Este con vista despejada.
3er. bloque: departamentos tipo dúplex (pb y alta).
2do. y 3er. bloque tiene entrega prevista para Mayo 2025.

Disponibilidades del bloque 1:
Piso 3 - 3 dormitorios (piso exclusivo): U$S 370.000.- / Superficie: 134 mts. + 22 mts. de balcón.

Disponibilidades bloque 2:
Piso 3 D - 2 dormitorios: U$S 130.000.- / Superficie: 65 mts. + 3 mts. de balcón.
Disponibilidad del bloque 3 (dúplex):
Dúplex (medianera Sur): U$S 125.000.- Superficie: 70 mts. + 10 mts. de patio.

Cocheras: U$S 20.000.-.

Estado de construcción

UBICACIÓN

Propiedades interesantes

Anterior
Siguiente
WhatsApp