venta | U$S 390.000

Casa 3 dormitorios

Next
Prev
Anterior
Siguiente
Estado de Construcción
Ubicación

San Juan 1600, Rosario, Santa Fe

Precio

U$S 390.000

Dormitorios3 Dormitorios
Superficie

253 m² totales

antiguedad

Antigüedad: A ninguna

JARDIN
QUINCHO CERRADO

Compartir por: WhatsApp Email

SOBRE ESTA PROPIEDAD

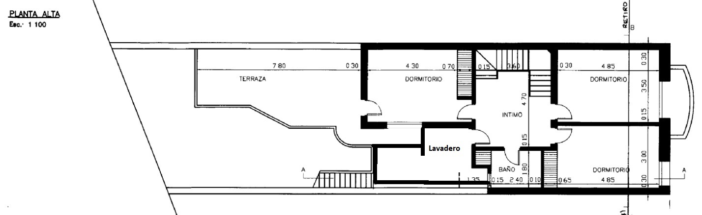
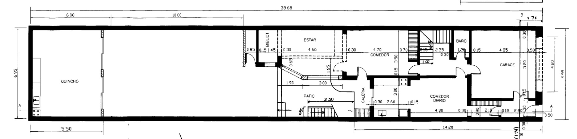
Casa desarrollada en 2 plantas con jardín y quincho en el corazón de Rosario.

Remodelada en el año 2007.

Superficie Construida 253 m2.Superficie Construida 253 m2.

La misma se encuentra sobre un terreno regular de 269 mts. (6.95 de frente norte x 38.68 mts. de profundidad).

Está compuesta de la siguiente manera:
PB: ingreso peatonal o vehícular a través de portón automático con espacio para dos vehículos, hall distribuidor a cocina comedor comedor, baño de recepción y living - comedor orientado al este. Jardín de 70 mts. y quincho de 38 mts. completamente cerrado con parrilla y horno a leña.
PA: descanso familiar que distribuye a tres amplios dormitorios con placard, baño completo, lavadero y terraza.


Estado de construcción

UBICACIÓN

Propiedades interesantes

Anterior
Siguiente
WhatsApp